单母线接线和双母线接线优缺点和接线图解
添加时间 2019-03-02
返 回
1.单母线接线
(1)只有一组母线的接线 ,进出线并接在这组母线上。
单母线接线图见图1。图中倒闸操作:如对馈线LI送电时,须先合上隔离开关QS2和QS3,再投人断路器QF2;如欲停止对其供电,须先断开QF2,然后再断开QS3和QS2。即隔离开关相对于断路器而言要“先通后断”,母线隔离开关相对于线路隔离开关也要“先通后断”。接地开关QS4是在检修电路和设备时合上,取代安全接地线的作用。
单母线接线优点:简单清晰、设备少、投资小、运行操作方便,且有利于扩建。
缺点:可靠性和灵活性较差。
应用:6~10kV配电装置的出线回路数不超过5回; 35~63kV配电装置的出线回路数不超过3回;110~220kV配电装置的出线回路数不超过2回。
改进:单母线分段接线、单母线带旁路接线。
(2)单母线分段接线:避免单母线接线可能造成全厂停电的缺点,提高供电可靠性及灵活性。见图2。
单母线用分段断路器QF1进行分段。两段母线同时故障的几率甚小,可以不予考虑。在可靠性要求不高时,亦可用隔离开关分段(QS),任一段母线故障时,将造成两段母线同时停电,在判别故障后,拉开分段隔离开关,完好段即可恢复供电。分段的数目,取决于电源的数量和容量。段数分越多,故障时停电范围越小,但使用断路器的数量亦越多,且配电装置和运行也越复杂,通常以2~3段为宜。这种接线方式广泛用于中、小容量发电厂的6~10kV主接线和6~220kV变电所配电装置中。
优点:对重要用户可以从不同段引出两回馈线,由两个电源供电;当一段母线发生故障(或检修),仅停该段母线,非故障段母线仍可继续工作。
缺点:当一段母线或母线隔离开关故障或检修时,接在该段母线上的回路必须全部停电;任一回路的断路器检修时,该回路必须停止工作。
(3)单母线分段带旁路接线:检修出线断路器,不致中断该回路供电。见图3。
增设旁路母线W2和旁路断路器QF2。旁路母线经旁路隔离开关QS3与出线连接。正常运行时,QF2和QS3断开。当检修某出线断路器QF1时,先闭合QF2两侧的隔离开关,再闭合QF2和QS3,然后断开QF1及其线路隔离开关 QS2和母线隔离开关QS1。这样QF1就可退出工作,由旁路断路器QF2执行其任务。即在检修QF1期间,通过QF2和QS3向线路L2供电。当检修电源回路断路器期不允许断开电源时,旁路母线还可与电源回路连接,此时还需在电源回路中加装旁路隔离开关,图中用虚线表示。
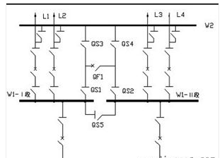
(4)单母线分段带旁路母线接线:为节约建设投资。常以分段断路器兼作旁路断路器的接线。两段母线均可带旁路母线,正常时旁路母线W2不带电,分段断路器QF1及隔离开关QS1、QS2在闭合状态,QS3、QS4、QS5均断开,以单母线分段方式运行,见图4。
2.双母线接线
双母线接线见图5。具有两组母线W1、W2。每回线路都经一台断路器和两组隔离开关分别与两组母线连接,母线之间通过母线联络断路器QF(简称母联)连接,每一个电源回路也是通过一台断路器和两组母线隔离开关接在两组母线上。
双母线接线优点:可靠性和灵活性大大提高。
双母线接线缺点:第一,闸操作比较复杂,在运行中隔离开关作为操作电器,容易发生误操作。第二,尤其当母线出现故障时,须短时切换较多电源和负荷; 当检修出线断路器时,仍然会使该回路停电。第三,配电装置复杂,投资较多经济性差。
改进措施:采用母线分段; 增设旁路母线系统;
一台半断路器优点:供电可靠性和运行调度灵活性高;缺点:设备多,投资较大,二次控制接线和继电保护 配置都比较复杂;应用在大型发电厂和变电所超高压配电装置。见图6。
(1)只有一组母线的接线 ,进出线并接在这组母线上。
单母线接线图见图1。图中倒闸操作:如对馈线LI送电时,须先合上隔离开关QS2和QS3,再投人断路器QF2;如欲停止对其供电,须先断开QF2,然后再断开QS3和QS2。即隔离开关相对于断路器而言要“先通后断”,母线隔离开关相对于线路隔离开关也要“先通后断”。接地开关QS4是在检修电路和设备时合上,取代安全接地线的作用。
![]() 图1 单母线接线图 |
缺点:可靠性和灵活性较差。
应用:6~10kV配电装置的出线回路数不超过5回; 35~63kV配电装置的出线回路数不超过3回;110~220kV配电装置的出线回路数不超过2回。
改进:单母线分段接线、单母线带旁路接线。
(2)单母线分段接线:避免单母线接线可能造成全厂停电的缺点,提高供电可靠性及灵活性。见图2。
![]() 图2 单母线分段接线图 |
优点:对重要用户可以从不同段引出两回馈线,由两个电源供电;当一段母线发生故障(或检修),仅停该段母线,非故障段母线仍可继续工作。
缺点:当一段母线或母线隔离开关故障或检修时,接在该段母线上的回路必须全部停电;任一回路的断路器检修时,该回路必须停止工作。
(3)单母线分段带旁路接线:检修出线断路器,不致中断该回路供电。见图3。
![]() 图3 单母线分段带旁路接线示意图 |
![]() 图4 分段断路器兼作旁断路器的接线图 |
(4)单母线分段带旁路母线接线:为节约建设投资。常以分段断路器兼作旁路断路器的接线。两段母线均可带旁路母线,正常时旁路母线W2不带电,分段断路器QF1及隔离开关QS1、QS2在闭合状态,QS3、QS4、QS5均断开,以单母线分段方式运行,见图4。
2.双母线接线
双母线接线见图5。具有两组母线W1、W2。每回线路都经一台断路器和两组隔离开关分别与两组母线连接,母线之间通过母线联络断路器QF(简称母联)连接,每一个电源回路也是通过一台断路器和两组母线隔离开关接在两组母线上。
双母线接线优点:可靠性和灵活性大大提高。
双母线接线缺点:第一,闸操作比较复杂,在运行中隔离开关作为操作电器,容易发生误操作。第二,尤其当母线出现故障时,须短时切换较多电源和负荷; 当检修出线断路器时,仍然会使该回路停电。第三,配电装置复杂,投资较多经济性差。
改进措施:采用母线分段; 增设旁路母线系统;
一台半断路器优点:供电可靠性和运行调度灵活性高;缺点:设备多,投资较大,二次控制接线和继电保护 配置都比较复杂;应用在大型发电厂和变电所超高压配电装置。见图6。
![]() 图5 双母线接线图 |
![]() 图6 一台半断路器接线图 |














